中国政府网
|
重庆市人民政府网
|
部门街镇
部门
区发展改革委
区教委
区科技局
区经济信息委
区公安分局
区民政局
区司法局
区财政局
区人力社保局
区生态环境局
区住房城乡建委
区城市管理局
区交通运输委
区水利局
区农业农村委
区商务委
区文化旅游委
区卫生健康委
区退役军人事务局
区应急管理局
区审计局
区国资委
区统计局
区医保局
区机关事务局
区信访办
区大数据发展局
区国防动员办
区林业局
区自贸办
区招商服务局
街镇
人和街道
大石坝街道
大竹林街道
寸滩街道
水土街道
双凤桥街道
双龙湖街道
五里店街道
天宫殿街道
王家街道
龙山街道
龙塔街道
龙溪街道
石马河街道
仙桃街道
礼嘉街道
江北城街道
回兴街道
观音桥街道
华新街街道
两路街道
金山街道
宝圣湖街道
复兴街道
铁山坪街道
悦来街道
鸳鸯街道
郭家沱街道
康美街道
翠云街道
蔡家岗街道
木耳镇
五宝镇
龙兴镇
玉峰山镇
石船镇
古路镇
鱼嘴镇
施家梁镇
复盛镇
洛碛镇
童家溪镇
登录
|
注册
|
注销
网站支持IPV6
重庆市两江新区人民政府回兴街道办事处
您当前的位置:
首页
>
回兴街道
>
政务公开
>
法定主动公开内容
>
其他法定主动公开信息
索 引 号:
11500157MB0B1885XL/2026-00021
发文字号:
发布机构:
回兴街道
成文日期:
2026-02-28
发布日期:
2026-02-28
标 题
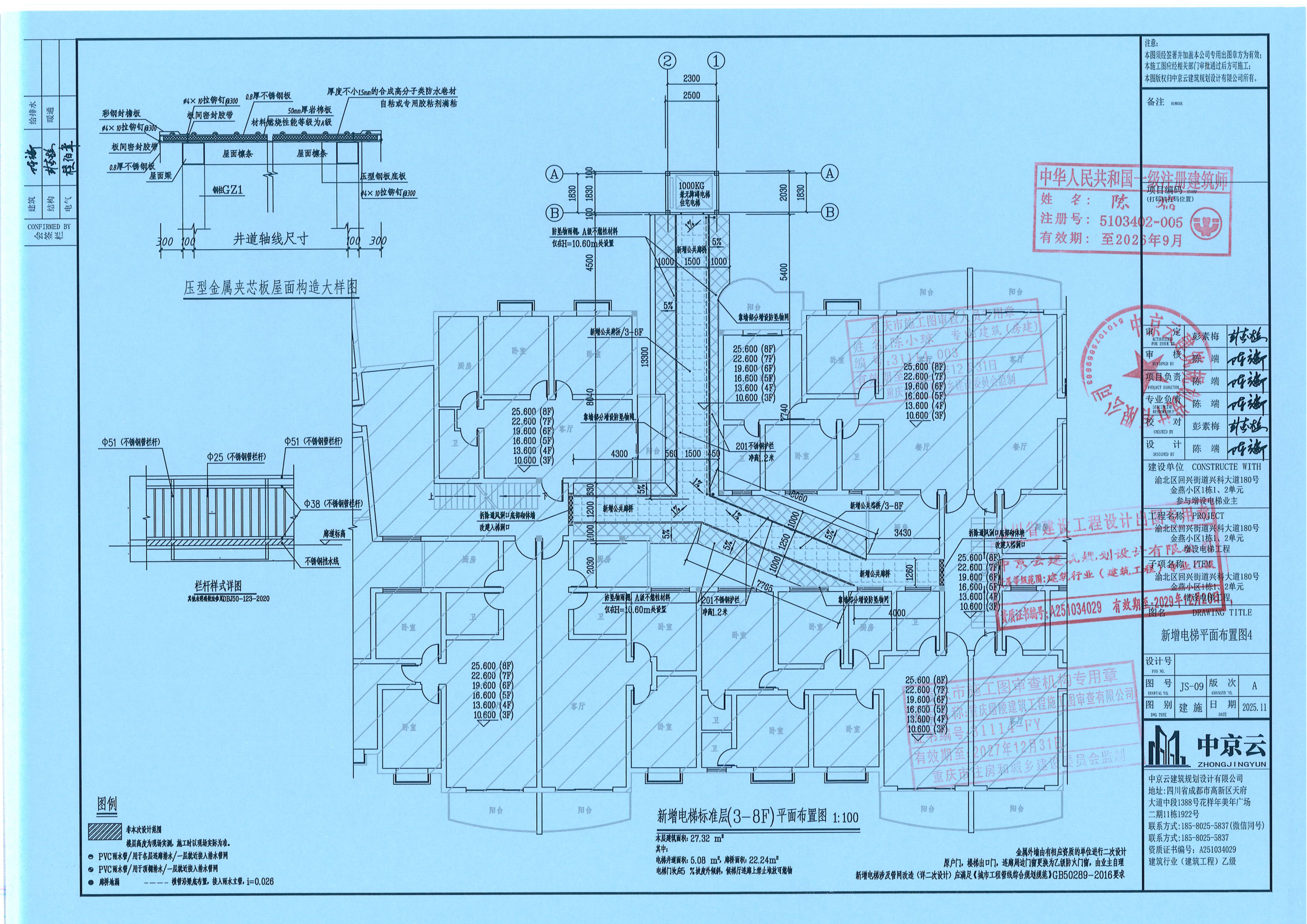
回兴街道兴科大道180号金燕小区1幢1、2单元电梯增设公示
主题分类:
其他
体裁分类:
公告公示;其他
有效性:
回兴街道兴科大道180号金燕小区1幢1、2单元电梯增设公示
语音播报
语音合成中,请耐心等待...
进入播报模式
语音播报
退出播报模式
字号:
大
中
小
分享到微信朋友圈
×
打开微信,点击底部的“发现”, 使用“扫一扫”即可将网页分享至朋友圈。
扫一扫在手机打开当前页
分享:
打印: